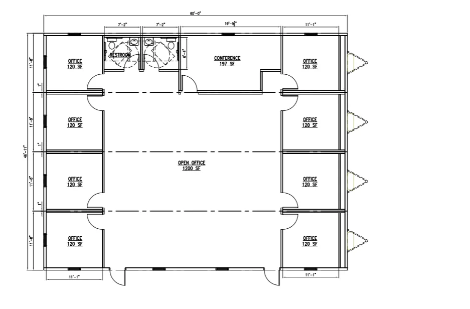
This 48' x 60' modular office provides 2,880 sq. ft. of flexible workspace in a 2018 build. Featuring factory-installed HVAC and electrical systems, durable Smart Panel siding, an EPDM roof, vinyl-covered gypsum walls, T-grid ceilings, and VCT flooring, this relocatable unit is well suited for office or administrative use with minimal site work required.








