MU002EXXX
Available Date: 2025-05-01
Get Quote
Request a Quote
To request a quote, please complete and submit the form below. A Modular Genius representative will contact you shortly.
General
Unit #
MU002EXXX
Date Built
2025-05-01
State
GA
Asset #
Available Date
2025-05-01
Type
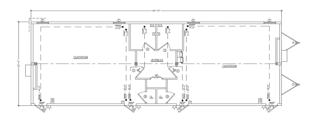
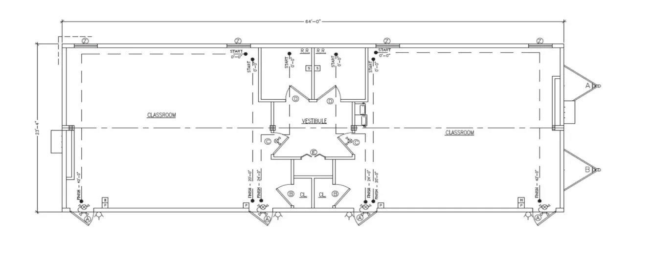
classroom_double
Serial #
TMI-114001-6 A-B
City
Alma
Specifications
Width
24
Mechanical
(2) 3 Ton 10KW
Roof Type
EPDM
Interior Walls
Vinyl Covered Gypsum
Length
64
Electrical
(2) 150 amp
Floor Covering
VCT
Interior Ceiling
T-Grid
Sq. Footage
1,536
Plumbing
2 Single Stall, Utility Sink, Water Fountains
Exterior Siding
Smart Panel
State Code
MD
VA
NC
AL
CT
GA
IN
KY
LA
MI
MS
NJ
NY
OH
PA
SC
TN
TX
WV












