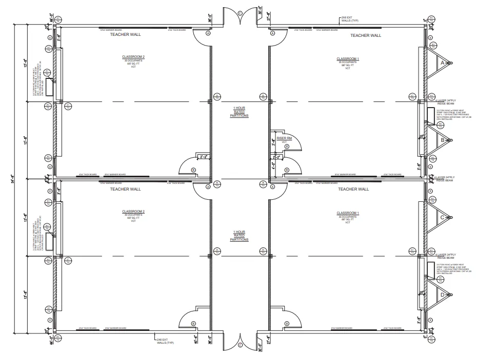
This 56' x 66' classroom building provides 3,696 sq. ft. of flexible educational space in a 2024 build. Featuring factory-installed HVAC and electrical systems, durable Smart Panel siding, an EPDM roof, vinyl-covered gypsum walls, T-grid ceilings, and VCT flooring, this relocatable unit is well suited for classroom or school support use with minimal site work required.












