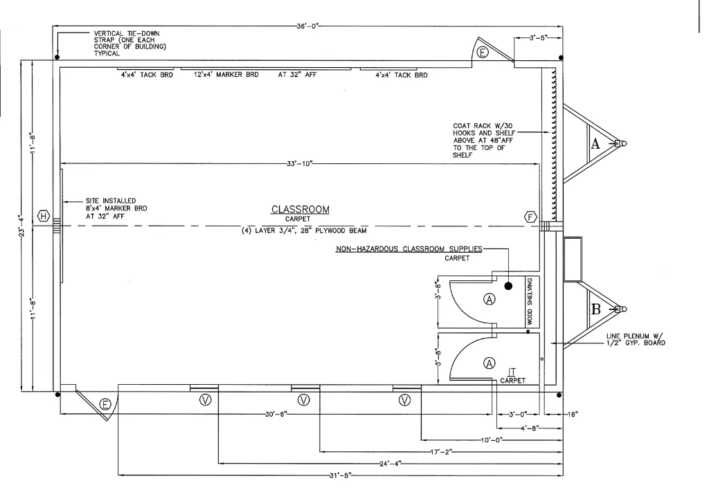
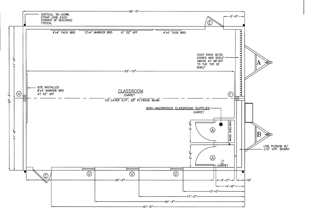
This 24' x 36' double classroom provides 864 sq. ft. of functional space in a 2021 build. Featuring factory-installed HVAC and a 150-amp electrical panel, along with durable Smart Panel siding, an EPDM roof, vinyl-covered gypsum walls, T-grid ceilings, and VCT flooring, this relocatable unit is well suited for classroom use with minimal site work required.









